Ruim 3-kamerappartement met vrij uitzicht en veel potentie op een fijne locatie!
Op een rustige locatie in de geliefde Heesterbuurt ligt dit ruime 3-kamerappartement op de tweede verdieping. De woning beschikt over twee slaapkamers, een lichte doorgebroken woonkamer, een balkon aan de achterzijde en is voorzien van kunststof kozijnen met HR++ glas en energielabel C.
Een ideale woning als je graag wilt wonen in een prettige wijk en niet terugschrikt van wat moderniseringswerk!
Indeling
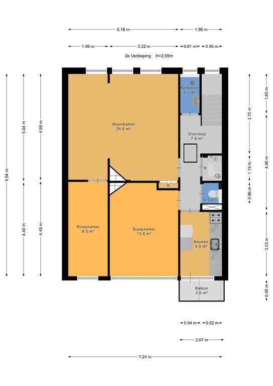
Via het open portiek kom je bij de afgesloten entree op de eerste verdieping met trap naar de woonverdieping.
Op de tweede verdieping vind je de overloop met dakraam, een vaste kast met meters en de opstelplaats van de CV-ketel (2019, eigendom) en wasmachine.
De doorgebroken woonkamer ligt aan de voorzijde van de woning en biedt een vrij uitzicht over de Watervlierstraat.
Aan de voorzijde ligt de eenvoudige, compacte badkamer met wastafel en douche. Het toilet is apart en netjes uitgevoerd.
De kleine slaapkamer is toegankelijk vanuit de woonkamer. De ruime tweede slaapkamer ligt aan de achterzijde.
De keuken, eveneens aan de achterzijde, is eenvoudig uitgevoerd en voorzien van een oven met fornuis en werkblad met kasten. Vanuit de keuken heb je toegang tot het balkon met middagzon.
Bijzonderheden
• Energielabel C
• Dakisolatie en nieuwe dakbedekking (2024)
• Kunststof kozijnen met HR++ glas
• CV-combiketel (2019, eigendom)
• Actieve VvE, bijdrage € 75,- per maand
• 1/6e aandeel in de vereniging
• Eigen grond (géén erfpacht)
• Interne staat redelijk; badkamer, keuken en schilderwerk zijn eenvoudig/verouderd
• Oplevering in overleg, kan snel
Een aantrekkelijk appartement op een fijne locatie, met een goede basis en volop mogelijkheden om er jouw eigen eigentijdse woning van te maken!
OmschrijvingDen Braber & Ram heeft ons geweldig geholpen. Het advies was helder, eerlijk en er werd snel geschakeld. Inmiddels zitten we er prachtig bij in ons droomhuis.