Ruim herenhuis met garage, twee parkeerplaatsen en prachtig uitzicht richting de duinen!
Op een unieke locatie in het duingebied van Kijkduin ligt dit goed onderhouden herenhuis met energielabel A, inpandige garage, drie ruime slaapkamers, twee badkamers en een sfeervolle orangerie/serre met uitzicht op de duinen. Deze woning biedt volop leefruimte, comfort en een heerlijke woonomgeving op een paar minuten loopafstand van het strand, de vernieuwde boulevard en de natuur.
Wat deze woning onderscheidend maakt is de combinatie van fraaie uitstraling en uitstekend onderhoud met een ligging op een van de mooiste plekken van Den Haag. Dankzij de royale indeling, het vele licht en de fraaie serre met uitzicht over het duingebied is het hier heerlijk wonen in alle seizoenen.
De woning is aan de achterzijde gelegen aan de bekende Haagse Beek en de Machiel Vrijenhoeklaan en heeft via deze laan en de Laan van Meerdervoort uitstekende verbindingen met Den Haag Centrum en de uitvalswegen van Den Haag, de A4, A12 en A13. Ook via openbaar vervoer is met buslijnen 23,24 en 26 en tramlijn 3 de stad en stations vlot bereikbaar.
Indeling van de woning
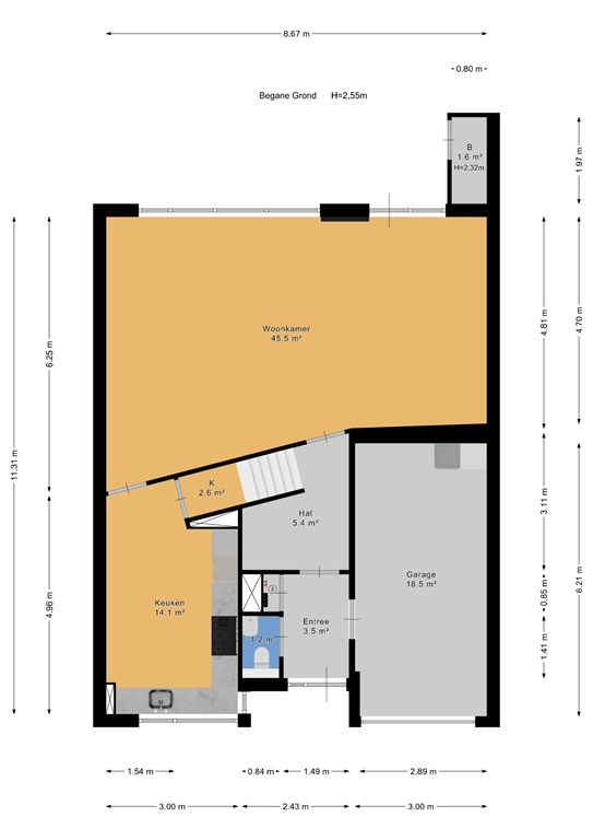
Begane grond
Entree via verzorgde oprit met ruimte voor 2 auto’s en toegang tot de verwarmde garage met elektrische deur. Tochtportaal met meterkast en modern toilet met fontein.
De ruime woon-/eetkamer beslaat de volledige breedte van de woning en is voorzien van een Bruynzeel-lamelparketvloer, convectorput en schuifpui naar de zonnige achtertuin op het zuidoosten met vrij uitzicht op het duingebied.
De moderne eetkeuken aan de voorzijde is voorzien van een hoogglans witgelakte keuken met inbouwapparatuur van Siemens en Atag, zoals een 5-pitsgasfornuis met wokbrander, afzuigkap, vaatwasser, koelkast, vriezer en elektrische oven. Vanuit de keuken kijkt u uit over het pleintje met het groene plantsoen.
Eerste verdieping
Overloop met toegang tot de eerste badkamer met inloopdouche, wastafel en toilet. Aan de achterzijde bevindt zich een ruime slaapkamer (oorspronkelijk twee slaapkamers) met uitzicht op het duin, lichte orangerie/serre met zonwering.
Aan de voorzijde ligt de hoofdslaapkamer met een walk-in-closet en tweede badkamer en-suite, voorzien van ligbad-/douchecombinatie, wastafel en toilet.
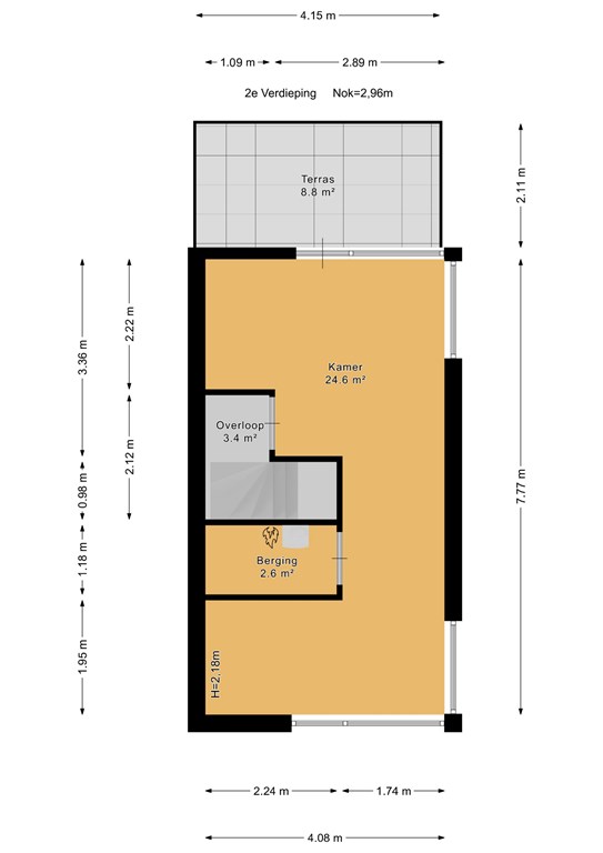
Tweede verdieping
Derde slaapkamer met aan beide zijden vrij uitzicht naar de duinen en toegang tot een zonnig dakterras. Tevens is hier een ruime vaste kast met opstelplaats van de cv-ketel en mechanische ventilatie.
Bijzonderheden
Gelegen op eeuwigdurend afgekochte erfpacht
– Energielabel A
– Goed onderhouden, jaarlijks geschilderd buitenwerk
– Verwarmde garage met water, elektra en elektrische deur
– Ruime parkeergelegenheid in de eigen wijk en twee parkeerplaatsen op eigen terrein (!)
– Zonnige tuin op het zuidoosten met zonnescherm
– Autoluwe, kindvriendelijke omgeving
– Houten kozijnen met dubbel glas
– Nabij het nieuwe winkelcentrum Kijkduin en boulevard, The International School of The Hague en andere nabijgelegen scholen zoals Dalton Scholengemeenschap, diverse basisscholen en sportverenigingen.
– Verkoopvoorwaarden Den Braber & Ram
– Oplevering in overleg
Quote van de eigenaren
Omdat het voor ons verstandig is gelijkvloers en kleiner te gaan wonen, nemen we met weemoed afscheid van dit fijne huis. In het voorjaar 1996 zijn wij hier met onze twee kinderen in deze woning, deel uitmakend van het in de verkoopbrochure aangeduide project Villadorp Westduinen (39 woningen) met moderne architectuur, komen wonen.
Met heel veel plezier inmiddels 30 jaar gewoond in dit kleine intieme buurtje waar men elkaar kent maar niemand elkaar op de lip zit.
Op deze plek beleef je volop de seizoenen door de nabijheid van de prachtige natuur eromheen en ruik je elke dag de frisse zeelucht. Na het werk en in de weekends was het altijd heerlijk om wandelingen te maken in het Westduingebied met het aangrenzende landgoed Ockenburgh en natuurlijk het strand; en op zomeravonden lekker een terrasje pakken of wat eten bij de verschillende strandtenten. Toen de kleinkinderen kwamen hebben die ook veel plezier beleefd op het strand met surfplanken etc.
De woning zelf hebben we goeddeels bewoond zoals door de architect bedacht en ingedeeld: lekkere, lichte ruime kamers om te verblijven en ’s morgens even een broodje eten aan de keukentafel voor we naar het werk gingen.
We laten het nu voor toekomstige bewoners in goede staat achter met allerlei mogelijkheden om het aan te passen aan de eigen wensen in het hedendaagse leven zoals bijv. met het oog op thuiswerken.
————————————————————————————
Spacious mansion with garage, two parking spaces, and beautiful views of the dunes!
This well-maintained mansion with energy label A, indoor garage, three spacious bedrooms, two bathrooms, and an attractive orangery/conservatory overlooking the dunes is situated in a unique location in the dune area of Kijkduin. This property offers plenty of living space, comfort, and a wonderful living environment just a few minutes’ walk from the beach, the renovated boulevard, and nature.
What makes this house distinctive is the combination of beautiful appearance and excellent maintenance with a location in one of the most beautiful spots in The Hague. Thanks to the spacious layout, the abundance of light, and the beautiful conservatory with a view over the dune area, it is wonderful to live here in all seasons.
The house is located at the rear on the well-known Haagse Beek and Machiel Vrijenhoeklaan and has excellent connections to The Hague city center and the A4, A12, and A13 highways via this avenue and Laan van Meerdervoort. The city and stations are also easily accessible by public transport with bus lines 23, 24, and 26 and tram line 3.
Layout of the house
Ground floor
Entrance via a well-maintained driveway with space for two cars and access to the heated garage with electric door. Vestibule with meter cupboard and modern toilet with washbasin.
The spacious living/dining room spans the entire width of the house and features Bruynzeel laminate parquet flooring, a convector pit, and sliding doors to the sunny Southeast-facing backyard with unobstructed views of the dunes.
The modern kitchen/diner at the front features high-gloss white lacquered cabinets with built-in appliances from Siemens and Atag, including a 5-burner gas stove with wok burner, extractor hood, dishwasher, refrigerator, freezer, and electric oven. The kitchen overlooks the small square with its green park.
First floor
Landing with access to the first bathroom with walk-in shower, sink, and toilet. At the rear is a spacious bedroom (originally two bedrooms) with a view of the dunes, and a bright orangery/conservatory with sun blinds.
At the front is the master bedroom with a walk-in closet and second en-suite bathroom, equipped with a bath/shower combination, sink, and toilet.
Second floor
Third bedroom with unobstructed views of the dunes on both sides and access to a sunny roof terrace. There is also a spacious built-in closet with space for the central heating boiler and mechanical ventilation.
Details
Located on a perpetual leasehold
– Energy label A
– Well maintained, exterior painted annually
– Heated garage with water, electricity, and electric door
– Ample parking in the neighborhood and two parking spaces on the property (!)
– Sunny southeast-facing garden with awning
– Low-traffic, child-friendly neighborhood
– Wooden window frames with double glazing
– Close to the new Kijkduin shopping center and boulevard, The International School of The Hague, and other nearby schools such as Dalton Scholengemeenschap, various elementary schools, and sports clubs.
– Terms and conditions of sale Den Braber & Ram
– Delivery in consultation
Quote from the owners
Because it makes sense for us to move to a smaller, single-story home, we are sad to say goodbye to this lovely house. In the spring of 1996, we moved here with our two children into this house, part of the Villadorp Westduinen project (39 houses) with modern architecture, as described in the sales brochure.
We have enjoyed living in this small, intimate neighborhood for 30 years, where everyone knows each other but no one is on top of each other.
Here, you can fully experience the seasons thanks to the beautiful nature that surrounds you, and you can smell the fresh sea air every day. After work and on weekends, it was always wonderful to take walks in the Westduin area with the adjacent Ockenburgh estate and, of course, the beach; and on summer evenings, enjoy a terrace or a bite to eat at the various beach bars. When the grandchildren came, they also had a lot of fun on the beach with surfboards, etc.
We lived in the house largely as the architect had designed and laid it out: nice, light, spacious rooms to stay in and eat a sandwich at the kitchen table in the morning before going to work.
We are now leaving it in good condition for future residents, with all kinds of possibilities to adapt it to their own wishes in contemporary life, such as working from home.
Den Braber & Ram heeft ons geweldig geholpen. Het advies was helder, eerlijk en er werd snel geschakeld. Inmiddels zitten we er prachtig bij in ons droomhuis.